Jak zaprojektować salon, który będzie piękny i funkcjonalny kluczowe zasady
- Podziel przestrzeń na strefy (wypoczynkowa, jadalniana, telewizyjna), zapewniając swobodne ciągi komunikacyjne o szerokości min. 80 cm.
- Zadbaj o ergonomię, zachowując odpowiednie odległości między meblami (np. min. 2 m między sofą a telewizorem, TV na wysokości oczu).
- Zastosuj oświetlenie warstwowe (ogólne, zadaniowe, dekoracyjne) z barwą światła dopasowaną do funkcji strefy.
- Wybierz styl i kolorystykę spójną z Twoimi preferencjami, czerpiąc z trendów 2026 (kolory ziemi, naturalne materiały, meble modułowe).
- W przypadku salonu z aneksem kuchennym, postaw na spójność stylistyczną i przemyślane wydzielenie stref, np. wyspą czy różnicą w podłodze.
- Unikaj najczęstszych błędów, takich jak niewłaściwe oświetlenie, niedopasowanie skali mebli czy brak punktu centralnego.
Projektowanie salonu krok po kroku planowanie przestrzeni
Zanim wybierzesz pierwszą sofę czy kolor farby, kluczowe jest solidne zaplanowanie przestrzeni. To fundament, na którym zbudujesz funkcjonalne i estetyczne wnętrze. Wiem z doświadczenia, że pominięcie tego etapu często prowadzi do rozczarowań i kosztownych poprawek.
Dobre planowanie to przede wszystkim analiza Twoich potrzeb i stylu życia. Zastanów się, co ma się dziać w salonie, kto będzie z niego korzystał i jakie funkcje ma pełnić. Dopiero potem przejdź do dokładnych pomiarów pomieszczenia i tworzenia wstępnej koncepcji.
Podział na strefy: Jak pogodzić strefę relaksu, jadalnię i kącik do pracy?
W dzisiejszych salonach rzadko kiedy mamy do czynienia z jedną, jasno określoną funkcją. Często to miejsce, gdzie odpoczywamy, jemy, pracujemy, a nawet spędzamy czas z dziećmi. Dlatego tak ważny jest przemyślany podział na strefy funkcjonalne. Moim zdaniem, to jeden z najważniejszych aspektów projektowania. Możesz wydzielić strefę wypoczynkową z sofą i fotelami, strefę jadalnianą ze stołem i krzesłami, a także kącik telewizyjny. Jeśli potrzebujesz, znajdzie się też miejsce na niewielkie biurko do pracy czy kącik do zabawy dla najmłodszych. Oto kilka sposobów na wizualne i funkcjonalne rozgraniczenie:
- Dywan: Duży dywan pod sofą i fotelami wyraźnie zaznaczy strefę wypoczynkową.
- Regał lub konsola: Niskie regały czy konsole mogą służyć jako subtelna bariera między strefami, nie blokując światła.
- Oświetlenie: Różne rodzaje lamp (np. wisząca nad stołem, stojąca przy fotelu) pomogą optycznie wydzielić poszczególne obszary.
- Kolorystyka ścian lub podłóg: Zmiana koloru ściany lub rodzaju podłogi (np. panele w salonie, płytki w aneksie) to wyraźny sygnał o zmianie funkcji.
Planowanie komunikacji: Wytycz ścieżki, które ułatwią ci życie
Swobodne ciągi komunikacyjne to podstawa komfortu w salonie. Nic tak nie irytuje, jak konieczność przeciskania się między meblami. Zawsze radzę moim klientom, aby zapewnić minimalną szerokość przejść wynoszącą 80 cm. Co więcej, staraj się, aby główna komunikacja nie przebiegała przez środek strefy wypoczynku. To pozwala na niezakłócony relaks i sprawia, że salon jest bardziej przyjazny dla użytkowników.
Budżet pod kontrolą: Jak oszacować koszty i uniknąć niespodzianek?
Planowanie budżetu to często najmniej przyjemna, ale niezwykle ważna część projektu. Rozpisz sobie główne kategorie wydatków: meble (sofa, fotele, stół, krzesła, komody), oświetlenie (lampy sufitowe, stojące, kinkiety), dekoracje (dywany, zasłony, poduszki, obrazy), a także ewentualne koszty robocizny, jeśli planujesz większe zmiany. Zawsze, ale to zawsze, uwzględnij bufor na nieprzewidziane koszty minimum 10-15% całkowitego budżetu. To uchroni Cię przed stresem i koniecznością rezygnacji z ważnych elementów.

Funkcjonalność przede wszystkim: jak rozmieścić meble, by salon był wygodny?
Kiedy już masz plan i budżet, czas na rozmieszczenie mebli. Pamiętaj, że funkcjonalność jest równie ważna, a może nawet ważniejsza niż sam wygląd. Nawet najpiękniejsze meble nie sprawdzą się, jeśli będą stały w niewygodny sposób. Skupmy się na ergonomii i logice przestrzeni.
Serce domu: Gdzie najlepiej ustawić sofę lub narożnik?
Sofa lub narożnik to zazwyczaj centralny punkt strefy wypoczynkowej. Optymalne ustawienie zależy od wielu czynników. Zastanów się, czy chcesz mieć widok na telewizor, okno, kominek, czy może na ogród. Staraj się ustawić ją tak, aby sprzyjała rozmowom i relaksowi. Jeśli masz duży salon, możesz ustawić sofę na środku pomieszczenia, tworząc przytulny "pokój w pokoju". W mniejszych przestrzeniach często jedyną opcją jest ściana, ale nawet wtedy warto pomyśleć o dodatkowych fotelach czy pufach, które dopełnią aranżację.
Ściana telewizyjna bez błędów: Optymalna odległość i wysokość
Ściana telewizyjna to kolejny kluczowy element wielu salonów. Aby oglądanie było komfortowe, należy zachować odpowiednią odległość między kanapą a telewizorem. Zgodnie z zasadami ergonomii, minimum to 2 metry, choć optymalna odległość zależy od wielkości ekranu. Co do wysokości, środek ekranu powinien znajdować się na wysokości oczu siedzącego widza. Unikaj zbyt wysokiego montażu, który wymusza nienaturalne unoszenie głowy.
Stolik kawowy nie tylko ozdoba. Jak wybrać idealny model?
Stolik kawowy to nie tylko element dekoracyjny, ale przede wszystkim praktyczny. To na nim postawisz filiżankę kawy, odłożysz książkę czy pilota. Przy wyborze zwróć uwagę na jego rozmiar i kształt. Powinien być proporcjonalny do sofy i reszty mebli wypoczynkowych. W małych salonach sprawdzą się stoliki z dodatkowym miejscem do przechowywania lub modele z lekką, ażurową konstrukcją, które nie przytłoczą przestrzeni. Pamiętaj, aby stolik był łatwo dostępny z każdego miejsca na sofie.
Przechowywanie w salonie: sprytne sposoby na porządek (komody, regały, meble modułowe)
Utrzymanie porządku w salonie to wyzwanie, dlatego tak ważne są przemyślane rozwiązania do przechowywania. Komody, regały, półki czy szafki RTV to podstawa. Coraz większą popularnością cieszą się meble modułowe, które można dowolnie konfigurować i dostosowywać do zmieniających się potrzeb. Warto również pomyśleć o meblach wielofunkcyjnych, np. pufach ze schowkiem. Oto kilka przykładów:
- Komody: Idealne na drobiazgi, dokumenty czy zastawę stołową.
- Regały otwarte i zamknięte: Łączą funkcję przechowywania z ekspozycją książek i dekoracji.
- Półki ścienne: Lekkie i minimalistyczne, doskonałe na książki lub pamiątki.
- Zabudowy na wymiar: Pozwalają maksymalnie wykorzystać dostępną przestrzeń, np. wokół telewizora.
- Meble modułowe: Elastyczne systemy, które można rozbudowywać i zmieniać.
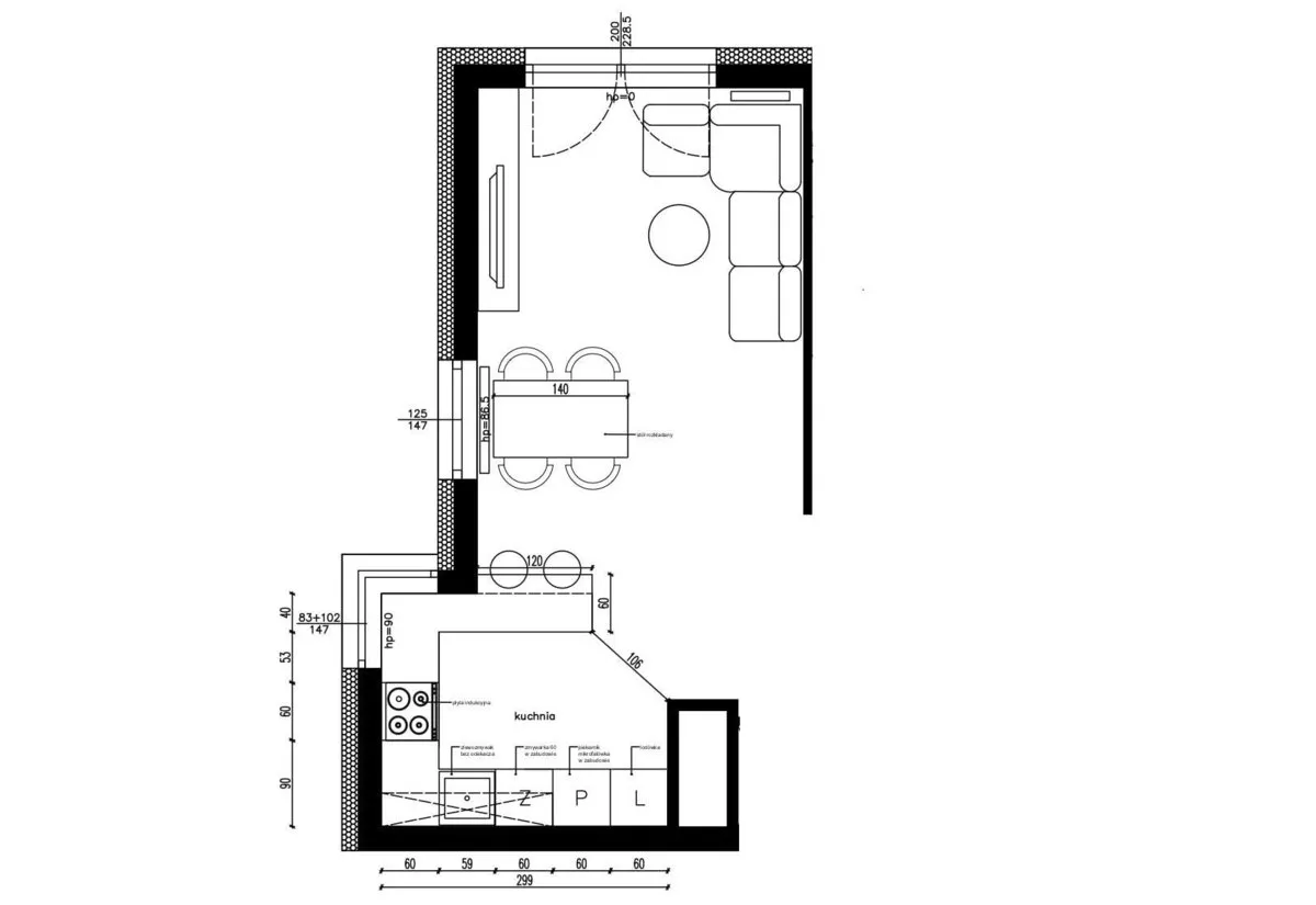
Salon z kuchnią: jak zaprojektować harmonijną i praktyczną przestrzeń?
Salon z aneksem kuchennym to rozwiązanie, które od lat cieszy się niesłabnącą popularnością, szczególnie w mniejszych mieszkaniach. Otwarta przestrzeń sprzyja integracji i optycznie powiększa wnętrze, ale stawia też pewne wyzwania. Kluczem jest stworzenie harmonijnego połączenia, które będzie zarówno estetyczne, jak i w pełni funkcjonalne.
Spójność to klucz: Jak połączyć stylistycznie kuchnię i salon?
W otwartych przestrzeniach spójność stylistyczna i kolorystyczna jest absolutnie kluczowa. Unikaj wrażenia dwóch oddzielnych pomieszczeń. Moja rada? Postaw na powtarzanie kolorów i materiałów. Jeśli w salonie masz drewniane lamele, rozważ drewniane akcenty w kuchni. Jeśli w salonie dominuje szarość, niech pojawi się ona również w detalach kuchennych. Podobne wykończenia frontów meblowych, blatów czy uchwytów sprawią, że całe wnętrze będzie wyglądać na przemyślane i eleganckie.
Wyraźne granice czy płynne przejście? Pomysły na wydzielenie stref (wyspa, stół, podłoga)
Nawet w otwartym planie warto subtelnie zaznaczyć granice między aneksem kuchennym a salonem. Możesz postawić na wyraźne rozgraniczenie lub płynne przejście wybór zależy od Twoich preferencji i układu pomieszczenia. Oto sprawdzone pomysły:
- Wyspa kuchenna: To klasyczne rozwiązanie, które świetnie sprawdza się jako granica, dodatkowy blat roboczy i miejsce do spożywania posiłków.
- Stół jadalniany: Duży stół ustawiony na granicy stref naturalnie je rozdziela, jednocześnie pełniąc funkcję łącznika.
- Różnica w podłodze: Zmiana materiału podłogi (np. płytki w kuchni, panele w salonie) to wyraźny, ale nieinwazyjny sposób na zaznaczenie stref.
- Ażurowa ścianka lub regał: Lekkie konstrukcje, które przepuszczają światło, ale wizualnie oddzielają przestrzenie.
- Niski murek lub półwysep: Może służyć jako dodatkowe miejsce do siedzenia lub barek.
Oświetlenie w otwartej przestrzeni: Jak doświetlić aneks, nie psując nastroju w salonie?
Oświetlenie w otwartej przestrzeni wymaga szczególnej uwagi. W kuchni potrzebujemy jasnego, zadaniowego światła do pracy, natomiast w salonie bardziej nastrojowego i rozproszonego. Kluczem jest zróżnicowanie źródeł światła i możliwość ich niezależnego sterowania. Nad blatem kuchennym sprawdzą się punktowe halogeny lub taśmy LED, a nad stołem jadalnianym elegancka lampa wisząca. W salonie postaw na lampy stojące, kinkiety i ściemniacze, aby móc regulować intensywność światła i tworzyć odpowiedni nastrój. Unikaj zbyt mocnego, jednolitego oświetlenia w całym pomieszczeniu, które może sprawić, że salon straci swój przytulny charakter.
Neutralizacja zapachów i hałasu: Jaki okap i sprzęty AGD wybrać?
Praktyczne aspekty są równie ważne, zwłaszcza w salonie z aneksem. Nikt nie chce, aby zapach gotowanego obiadu unosił się w całym domu, a głośna zmywarka zakłócała wieczorny relaks. Dlatego przy wyborze okapu postaw na model o wysokiej wydajności i cichej pracy. Zwróć uwagę na decybele podawane w specyfikacji. Podobnie jest ze sprzętami AGD wybieraj ciche modele zmywarek, lodówek czy pralek. To inwestycja, która znacząco podniesie komfort użytkowania całej otwartej przestrzeni.

Gra światłem i kolorem: jak stworzyć atmosferę i optycznie powiększyć wnętrze?
Światło i kolor to potężne narzędzia w rękach projektanta. Mają ogromny wpływ na atmosferę, jaką odczuwamy w pomieszczeniu, a także na to, jak postrzegamy jego rozmiar. Dobrze dobrane potrafią zdziałać cuda, tworząc przytulne lub przestronne wnętrze, które sprzyja relaksowi i codziennemu życiu.
Kolory, które zdominują salony w 2026 roku: Paleta barw ziemi i natury
Trendy kolorystyczne na rok 2026 wyraźnie wskazują na powrót do natury i spokoju. W moich projektach coraz częściej sięgam po te odcienie, ponieważ wprowadzają do wnętrz harmonię i ciepło. Dominują kolory ziemi, takie jak terakota, ciepłe beże i odcienie piaskowe. Obok nich pojawiają się pastelowe błękity i pudrowe róże, dodające subtelności. Nie możemy zapomnieć o barwach inspirowanych naturą, czyli szałwiowej zieleni i głębokiej butelkowej zieleni, które wnoszą do wnętrza świeżość. Jako baza, niezmiennie popularna jest "chmurkowa biel" (Cloud Dancer), która stanowi idealne tło dla mocniejszych akcentów. Oto najmodniejsze kolory:
- Barwy ziemi: Terakota, beże, odcienie piaskowe.
- Pastele: Delikatne błękity, pudrowe róże.
- Zieleń: Szałwiowa zieleń, butelkowa zieleń.
- Baza: "Chmurkowa biel" (Cloud Dancer).
Magia oświetlenia warstwowego: Dlaczego jedna lampa na suficie to za mało?
Jeśli w Twoim salonie wisi tylko jedna lampa sufitowa, to niestety tworzysz sobie ciemne kąty i płaskie, mało interesujące wnętrze. Zawsze podkreślam, że oświetlenie warstwowe to podstawa. Składa się ono z trzech głównych typów:- Oświetlenie ogólne: Zapewnia równomierne światło w całym pomieszczeniu (np. lampa sufitowa, plafon).
- Oświetlenie zadaniowe: Skupia światło tam, gdzie jest potrzebne do konkretnych czynności (np. lampa do czytania przy fotelu, oświetlenie blatu roboczego w aneksie).
- Oświetlenie dekoracyjne: Podkreśla elementy wnętrza, tworzy nastrój (np. kinkiety, taśmy LED, podświetlane półki).
Dzięki zastosowaniu różnych źródeł światła możesz dowolnie modelować przestrzeń, tworzyć przytulne zakamarki i podkreślać wybrane elementy. To naprawdę zmienia odbiór wnętrza!
Jak dobrać barwę światła do nastroju, który chcesz uzyskać?
Barwa światła ma ogromne znaczenie dla naszego samopoczucia i funkcji pomieszczenia.
- Ciepła barwa światła (poniżej 3000K): Idealna do strefy relaksu, sypialni. Tworzy przytulny, odprężający nastrój, sprzyja wyciszeniu.
- Neutralna barwa światła (ok. 4000K): Najbardziej zbliżona do światła dziennego, dobra do pracy, kuchni, łazienki. Zapewnia dobrą widoczność i nie męczy oczu.
- Zimna barwa światła (powyżej 5000K): Pobudza i koncentruje, ale może być zbyt ostra w salonie. Rzadko stosowana w pomieszczeniach mieszkalnych, chyba że w bardzo nowoczesnych, minimalistycznych aranżacjach.
Lustra i błyszczące powierzchnie: Proste triki na optyczne powiększenie salonu
Jeśli Twój salon jest niewielki, mam dla Ciebie kilka sprawdzonych trików na optyczne powiększenie przestrzeni. To proste, ale skuteczne rozwiązania, które stosuję w wielu projektach:
- Lustra: Duże lustro na ścianie potrafi zdziałać cuda, odbijając światło i przestrzeń, sprawiając, że pokój wydaje się dwukrotnie większy.
- Jasne kolory: Jasne ściany i meble sprawiają, że wnętrze jest bardziej przestronne i świetliste.
- Błyszczące powierzchnie: Lakierowane fronty meblowe, szklane blaty czy metalowe akcenty odbijają światło, dodając wnętrzu lekkości i głębi.
- Minimalizm w dekoracjach: Unikaj zbyt wielu drobiazgów, które mogą zagracić małą przestrzeń.

Wybór stylu: jak znaleźć estetykę, która odzwierciedla ciebie?
Wybór stylu to jeden z najbardziej ekscytujących etapów projektowania salonu. To właśnie on nada wnętrzu charakter i sprawi, że poczujesz się w nim jak w domu. Pamiętaj, że salon powinien odzwierciedlać Twoją osobowość, pasje i styl życia, a nie być jedynie kopią z katalogu.
Modne style w 2026: Od ciepłego minimalizmu (Japandi) po wyrafinowany maksymalizm
Świat designu wnętrz jest dynamiczny, a rok 2026 przynosi ze sobą ciekawe kierunki. W moich projektach widzę, że coraz chętniej odchodzimy od surowego minimalizmu na rzecz bardziej spersonalizowanych i przytulnych rozwiązań. Oto style, które zyskują na popularności:
- Soft modern: Łączy nowoczesne formy z miękkimi tkaninami, zaokrąglonymi kształtami i ciepłą kolorystyką, tworząc eleganckie, ale przyjazne wnętrza.
- Modern classic: Elegancja klasycznych wzorców połączona z nowoczesnymi elementami. Cechuje go ponadczasowość i wyrafinowanie.
- Japandi: To fuzja japońskiego minimalizmu i skandynawskiej funkcjonalności. Charakteryzuje się prostotą, naturalnymi materiałami, stonowaną kolorystyką i dbałością o detale. To kwintesencja ciepłego minimalizmu.
- Wyrafinowany maksymalizm: Dla odważnych! Łączy różne epoki, wzory i tekstury, tworząc bogate, eklektyczne wnętrza pełne osobowości, ale z zachowaniem smaku i harmonii.
Ponadczasowa klasyka: Elementy stylu skandynawskiego, industrialnego i glamour
Obok nowości, wciąż mamy do czynienia z ponadczasowymi stylami, które nie wychodzą z mody i nadal inspirują. Wiele osób ceni je za ich unikalny charakter i możliwość adaptacji. Oto te, które niezmiennie cieszą się popularnością:
- Styl skandynawski: Jasne kolory, naturalne drewno, proste formy, funkcjonalność i przytulność. Idealny dla miłośników jasnych i przestronnych wnętrz.
- Styl industrialny: Surowość betonu, cegły, metalu, otwarte przestrzenie, widoczne instalacje. Doskonały dla tych, którzy cenią loftowy charakter i oryginalność.
- Styl glamour: Luksus, blask, aksamit, lustra, kryształy, złote i srebrne akcenty. Dla osób, które marzą o eleganckim i efektownym wnętrzu.
Siła detalu: Jak dobrać tekstylia (zasłony, dywany, poduszki) i dekoracje?
Detale to dusza wnętrza! To właśnie tekstylia i dekoracje nadają salonowi indywidualny charakter i sprawiają, że staje się on przytulny. Przy wyborze zasłon, dywanów i poduszek kieruj się spójnością ze stylem, ale nie bój się eksperymentować z fakturami i wzorami. W 2026 roku stawiamy na naturalne tkaniny, takie jak aksamit, wełna, len czy modne bouclé. Miękkie poduszki, puszyste dywany i dobrze dobrane zasłony potrafią całkowicie odmienić wygląd i atmosferę pomieszczenia.
Ściany w roli głównej: Tapety, lamele, sztukateria co wybrać?
Ściany to nie tylko tło, ale potężny element dekoracyjny, który może stać się głównym punktem salonu. Coraz częściej odchodzimy od prostego malowania na rzecz bardziej wyrazistych rozwiązań. Oto kilka propozycji, które warto rozważyć:
- Tapety: Od klasycznych wzorów po nowoczesne grafiki, tapety potrafią całkowicie odmienić wnętrze i dodać mu charakteru.
- Lamele drewniane: To hit ostatnich lat! Pionowe listwy z drewna dodają wnętrzu ciepła, elegancji i nowoczesności, a także poprawiają akustykę.
- Sztukateria: Listwy ścienne, rozety, gzymsy sztukateria to sposób na wprowadzenie klasycznej elegancji i wyrafinowania.
- Beton architektoniczny lub cegła: Idealne do wnętrz industrialnych i loftowych, dodają surowego, ale stylowego charakteru.
Najczęstsze pułapki: 5 błędów w projektowaniu salonu, których musisz unikać
Nawet doświadczeni projektanci popełniają błędy, ale świadomość tych najczęstszych może uchronić Cię przed kosztownymi pomyłkami i frustracją. Z mojej praktyki wynika, że te pięć błędów pojawia się najczęściej. Warto je znać, by ich uniknąć i cieszyć się idealnie zaprojektowanym salonem.
Błąd #1: Ignorowanie skali czyli o za małym dywanie i meblach "pływających" w przestrzeni
To jeden z najczęstszych błędów, który psuje całą aranżację. Zbyt mały dywan, który nie obejmuje wszystkich mebli wypoczynkowych, sprawia wrażenie, że meble "pływają" w przestrzeni. Podobnie jest ze zbyt małymi meblami w dużym pomieszczeniu wyglądają na zagubione. Zawsze doradzam, aby dywan był na tyle duży, aby przednie nogi wszystkich mebli wypoczynkowych stały na nim. Jeśli salon jest duży, wybieraj proporcjonalnie większe meble, które wypełnią przestrzeń i stworzą spójną całość.
Błąd #2: Chaos oświetleniowy jak nie stworzyć ciemnych kątów i ponurego nastroju
Jak już wspomniałam, poleganie wyłącznie na jednym, centralnym źródle światła to prosta droga do stworzenia nieprzyjemnego i mało funkcjonalnego wnętrza. Taka lampa tworzy ostre cienie, pozostawia ciemne kąty i sprawia, że salon wydaje się ponury. Zamiast tego, postaw na oświetlenie warstwowe lampę sufitową jako światło ogólne, lampy stojące i kinkiety jako światło zadaniowe i dekoracyjne. Dzięki temu możesz dostosować oświetlenie do każdej sytuacji i stworzyć odpowiedni nastrój.
Błąd #3: Meble ustawione pod ścianami dlaczego to nie zawsze dobry pomysł?
Wielu z nas ma tendencję do ustawiania wszystkich mebli pod ścianami, myśląc, że to optymalizuje przestrzeń. Tymczasem często prowadzi to do stworzenia pustego, nieciekawego środka pomieszczenia i braku intymności w strefie wypoczynkowej. Jeśli masz duży salon, nie bój się odsunąć sofy od ściany. Możesz ustawić ją na środku, tworząc dwie mniejsze strefy, lub użyć konsoli za sofą. To dodaje dynamiki i sprawia, że wnętrze jest bardziej przemyślane.
Błąd #4: Brak punktu centralnego (focal point) w aranżacji
Każde dobrze zaprojektowane wnętrze potrzebuje punktu centralnego, czyli elementu, który natychmiast przyciąga wzrok i wokół którego buduje się całą aranżację. Może to być kominek, duży obraz, designerska lampa, a nawet ściana telewizyjna, jeśli jest odpowiednio zaaranżowana. Brak takiego "focal point" sprawia, że salon wydaje się chaotyczny, bez wyrazu i po prostu nudny. Zastanów się, co w Twoim salonie może pełnić tę rolę i odpowiednio to wyeksponuj.
Błąd #5: Kupowanie wszystkiego z jednego kompletu jak uniknąć efektu "z katalogu"?
Kupowanie całego kompletu mebli z jednego sklepu czy kolekcji to najprostsza droga do stworzenia wnętrza, które wygląda jak wyjęte z katalogu ładnie, ale bezosobowo. Zachęcam do personalizacji i łączenia mebli i dodatków z różnych źródeł. Mieszaj style, tekstury, a nawet epoki. Stara, odrestaurowana komoda obok nowoczesnej sofy? Czemu nie! To właśnie takie połączenia nadają wnętrzu unikalny charakter i sprawiają, że opowiada ono Twoją historię.
Ostatnie szlify: jak nadać salonowi indywidualny charakter?
Kiedy główne elementy aranżacji są już na swoim miejscu, przychodzi czas na te "ostatnie szlify", które nadają salonowi duszę. To właśnie detale, osobiste akcenty i przemyślane rozwiązania sprawiają, że wnętrze staje się naprawdę Twoje, odzwierciedlając Twoją osobowość i styl życia. Nie lekceważ ich mocy!
Zielona energia: Rola roślin w aranżacji wnętrza
Rośliny to prawdziwa zielona energia w każdym wnętrzu. Ich rola w aranżacji wnętrz rośnie z roku na rok, i słusznie! Nie tylko pięknie wyglądają, ale także wpływają na nasze samopoczucie, oczyszczają powietrze i dodają życia przestrzeni. Duże, efektowne rośliny doniczkowe mogą stać się prawdziwymi rzeźbami, a mniejsze kompozycje na półkach czy stolikach dodają świeżości i koloru. Wybieraj rośliny dopasowane do warunków świetlnych w Twoim salonie i nie bój się eksperymentować z różnymi gatunkami.Twoja osobista galeria: Jak eksponować obrazy, grafiki i zdjęcia?
Ściany salonu to idealne miejsce na stworzenie Twojej osobistej galerii. Obrazy, grafiki, plakaty czy rodzinne zdjęcia to elementy, które mówią o Tobie najwięcej. Nie musisz być koneserem sztuki, aby stworzyć efektowną kompozycję. Możesz powiesić kilka obrazów w różnych rozmiarach, tworząc tzw. "galerię ścienną", lub postawić na jeden duży, dominujący obraz. Pamiętaj o spójności ram i ich dopasowaniu do stylu wnętrza. Dobrze dobrane oświetlenie galerii dodatkowo podkreśli jej piękno.
Przeczytaj również: Jaki rozmiar telewizora 4K do salonu? Uniknij błędu!
Technologia w służbie designu: Jak dyskretnie wkomponować sprzęt RTV i smart home?
Współczesny salon to często przestrzeń, w której technologia odgrywa dużą rolę. Sprzęt RTV, rozwiązania smart home czy inteligentne oświetlenie to elementy, które mają ułatwiać życie, ale nie powinny dominować nad designem. Moim zdaniem, kluczem jest dyskretne wkomponowanie ich w estetykę salonu. Telewizor można zawiesić na ścianie i otoczyć go zabudową meblową, która go ukryje, gdy nie jest używany. Kable powinny być niewidoczne. Systemy smart home można zintegrować z oświetleniem, roletami czy ogrzewaniem, sterując nimi za pomocą paneli dotykowych, które wtapiają się w ścianę, lub aplikacji w telefonie. Pamiętaj, że technologia ma służyć Tobie, a nie na odwrót.
